Home
Projects
Retail
Carhartt
Bassett Furniture
Woodland Hills, CA
Burlington, MA
San Jose, CA
Scottsdale, AZ
Chandler, AZ
Daly City, CA
Ibex
Ace Ticket
JNBY
Marshalls
Pet Supplies Plus
Oak Furnitureland
Sleep Number
Wren Kitchens
Commercial
NxStage
Riverwalk Properties
Main St. Marketplace
Middlesex Marketplace
480 Adams Street
The Crossing at Bedford
Boston Laser
Drydock Center
North Star
908 Devices
Air Graphics
The Heights at Haverhill
Institutional
Holy Family Parish
St. Bernard's Parish
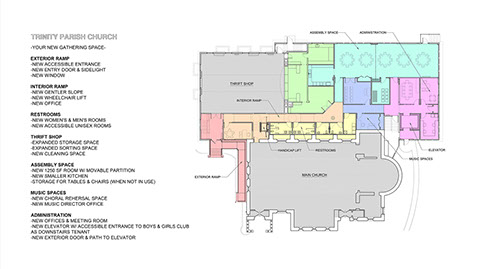
Trinity Parish Melrose
Dining + Hospitality
Meadhall
K-Style
BNPC
Sal's Pizza
Sal's Pizza Fenway
Sal's Pizza Manchester
Boston Indian Kitchen
Sonesta Art Bar
Residential
Above the Dunes
Braces Cove
Craftsman Colonial
New Skin
Ocean Retreat
Surgical Expansion
Twin Peaks
Victorian
Waters Edge
Welcome Home
Historic
Eustis Fire House
Winchester Hospital
Fitness
Flow Fitness
Best Fitness
Medical
Andover Medical Center
NEDA
NEDA Marblehead
NEDA Salem
Oasis Dental Solutions
About Us
Our Mission
David Burton
Joseph Zelloe
David Cockreham
Frank Marciano
Contact Us
Melrose, MA
(renovation in development)
Trinity Parish Church
355 Main St / Suite 26 / Woburn / MA / 01801 info@db2arch.com 781.205.2280